Любите париться в бане, но еженедельные походы в парную больше не вызывают былого восторга? Как вам идея попариться в плавучей сауне посредине реки или озера с последующим купанием в прохладной воде? Реализовать эту необычную идею можно с помощью нашей бани на понтонах. Она размещается на понтонах прямо на поверхности водоема, благодаря чему открывается неограниченный доступ к воде. Это создает непередаваемую атмосферу блаженства и единения с природой, которую невозможно воссоздать в помещении.
Самоходная баня на понтонах

Несколько слов о компании
Вуокса Пирс – производитель плавучих бань в из натурального кедра и хвои премиального качества. За годы практики мы научились создавать качественные и уютные пирсы, хаусботы и беседки из натуральных материалов.
Сейчас в нашем ассортименте уютные плавучие бани различного размера и конфигурации. Мы создаем уголки уюта полностью под ключ: от разработки проекта до спуска готового объекта на воду. Мы не ограничиваем вашу фантазию, создаем бани для разных целей и задач: это может быть небольшая семейная банька или крупный коммерческий объект. Обязательно проводим индивидуальный расчет нагрузок плавучести для каждого проекта.
Интерьер и экстерьер тоже создается с учетом ваших пожеланий и потребностей: сооружение может состоять из одной или нескольких помещений, иметь санузел, прихожую. Внутри наши бани продуманы до мелочей: мы учли все мелочи для эргономичности и максимальной функциональности. Благодаря огромному опыту проектирования домов на воде и бань, мы точно знаем, как использовать каждый сантиметр площади. В саунах всегда удобное расположение печи, столов, полок. При необходимости мы можем организовать и внешнее оборудование: дополнительные ящики, места для хранения, кресла и столики для отдыха, барбекю, лестницу для спуска в воду.
Хотите посмотреть на наши бани вживую и потрогать их? Приглашаем вас взять а аренду баню, для этого оставьте заявку на обратный звонок.
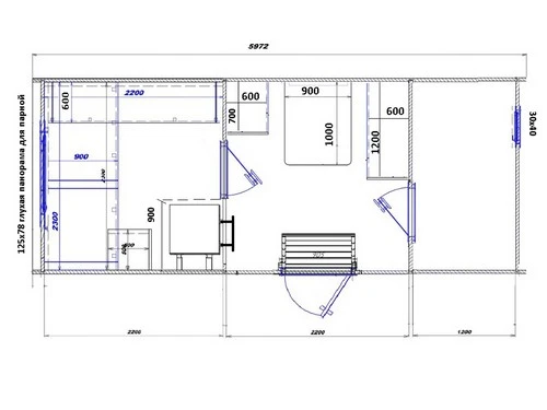
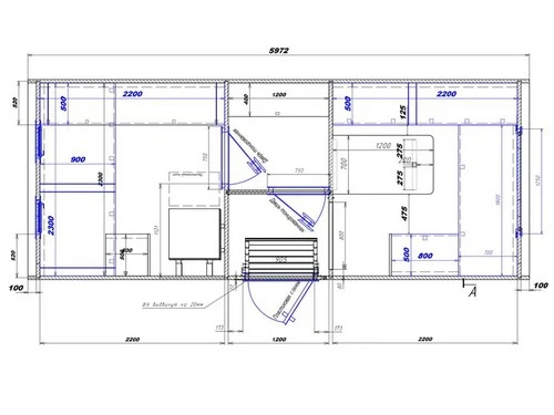
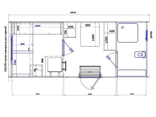
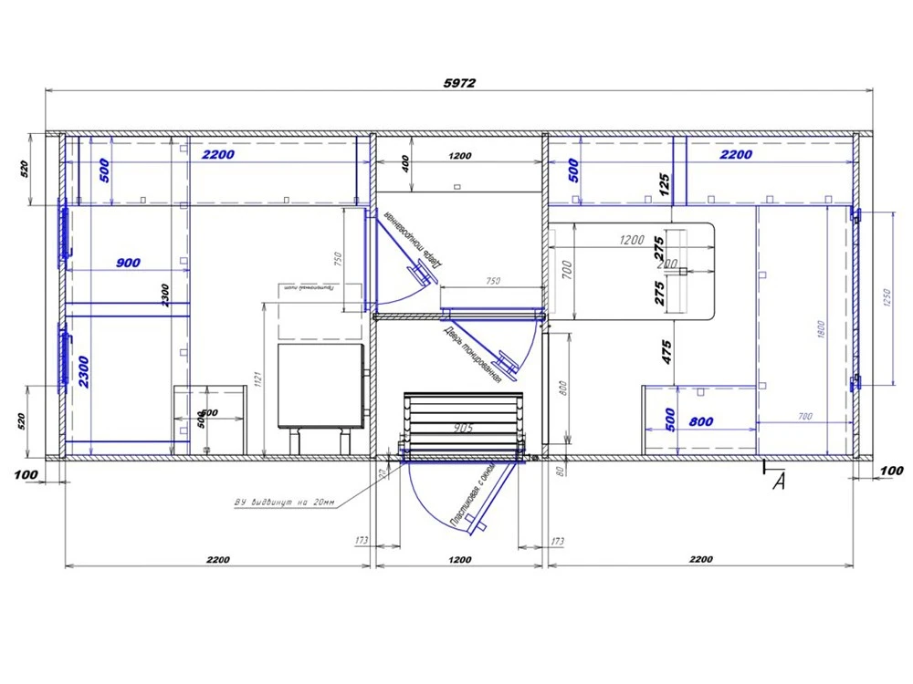
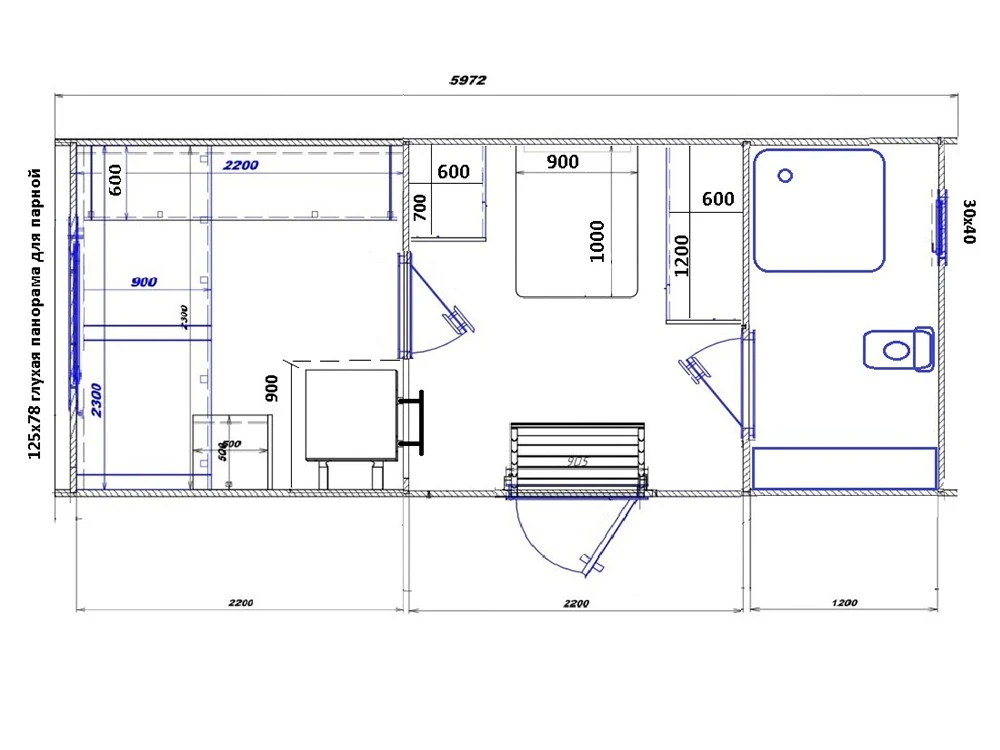
Планировки плавучей бани «ВИКИНГ»
Что такое плавучая баня
Каркас
Габариты нашей стандартной понтонной платформы – 7,5 метра в длину и 6 метров в ширину (при необходимости можно сделать больше). Усиленный каркас изготавливается из металлической трубы, металлопрофиля квадратного сечения. Он обработан и покрыт защитными составами и краской тикурилла для устойчивости к погодным условиям и воды. При производстве всегда учитываются все нагрузки: весовые, на скрутку и т.д. (для каждого проекта проводим индивидуальный расчет нагрузок). На выходе получается эстетически красивый и абсолютно безопасный каркас с высоким запасом прочности. Крыша покрыта гибкой черепицей – долговечным, экологичным материалом с эстетичным внешним видом.
Понтоны (подводная часть)
Все конструкции устанавливаются на современные высокотехнологичные понтоны (поплавки) из пнд труб с волнорезами, в каждый из которых встроены датчики протечки и объёма. Они устойчивы к отрицательной температуре и не боятся вмерзания в лед благодаря чему их не нужно извлекать зимой. Они также не боятся перепада температур, УФ-лучей, деформаций, сильных ударов, не обрастают микроорганизмами и не ржавеют в отличие от железных. Понтоны абсолютно безопасны для экологии поскольку не выделяют никаких вредных веществ. Перед установкой они обязательно проходят все проверки и испытания. Для абсолютно каждой бани мы производим индивидуальный расчет необходимого водоизмещения и плавучести исходя из техзадания заказчика.
Палуба
На наших плавучих банях можно не только находиться внутри, но и снаружи. Понтон может быть изготовлен в любом размере, чтобы на нем смогли разместиться все отдыхающие. У вас много друзей или большая дружная семья? Укажите нам количество людей, которые одновременно будут отдыхать в бане, и мы рассчитаем количество и размер понтонов, и при необходимости усилим каркас.
На палубе также можно поставить удобные релакс-кресла собственного производства, столик для напитков и еды, профессиональный гриль для приготовления закусок и шашлыков. Это даст возможность одной части компании париться в сауне, а другой – загорать на палубе, купаться, общаться и жарить шашлыки. Места хватит всем!
Баня на понтонах оснащена складным трапами, чтобы после парения вы могли окунуться в водоем, а потом безопасно подняться обратно на понтон. Также здесь находятся системы хранения для огнетушителей, спасательных жилетов и прочих предметов. Палуба может быть оснащена также кнехтами, для швартования, ограждениями по вашему вкусу для эстетики и безопасности нахождения на воде.
Настил (покрытие палубы, на который ставится баня)
Он может быть выполнен в разных вариантах, в зависимости от ваших пожеланий. В базовой комплектации мы изготавливаем его из хвойных пород дерева – сосны или ели, а также из лиственницы. Это наиболее зарекомендовавшие себя материалы по соотношению цена –качество. По индивидуальному заказу можем покрыть каркас премиальными материалами. Вся палуба обработана специальными защитными составами, защищающими её от погодных условий и воды.
Баня (парная)
При изготовлении парилки мы учитывали не только эргономику помещения, но и подбирали радиус окружности, продумывали форму, консультируясь с лучшими пармастерами. Это важно для правильного распределения пара и качественного парения. Сама конструкция максимально энергоэффективная, не боится плохой погоды, осадков, мороза и сильного ветра. Микроклимат в бане останется неизменным, чтобы вы получали максимальную пользу и комфорт от парения.
Приятным бонусом станут материалы, из которых выполнена отделка. Они очень приятные на ощупь, обработаны специальными экологически чистыми составами для продления срока эксплуатации (прослужат не одно десятилетие).
Парные оборудованы качественными, экономичными и быстро разогревающимися печами от наших партнеров GRILL D и HARVANA. Эти установки генерируют два типа пара – сухой и влажный. Вы можете выбрать тот, который больше подходит для целей и пожеланий вашей компании.
Для наслаждения пейзажами есть увеличенное панорамное окно. Оно дает возможность слиться с природой и полностью расслабиться, находясь в тепле.
Современное продуманное освещение
Мы предлагаем несколько сценариев внешнего и внутреннего освещения для создания необходимого настроения. Все электроприборы интегрируются с голосовым помощником Алисой. Все лампы экономичны (светодиодные) с обязательной влагозащитой, они не боятся холода и жары.
Комната отдыха
В каждой бане предусмотрена удобная и функциональная комната для отдыха между парениями. Здесь есть стол и скамейки, можно отдохнуть и пообщаться.
Санузел
Полноценный функциональный санузел с душем, унитазом и бойлером есть в банях увеличенного размера. Он такой же комфортный как дома.
Мы заботимся об экологии и по вашему желанию, как дополнительную опцию, можем установить функциональный септик и систему самоочищения стоков. Вам не придется ничего сливать за борт, каждый санузел может быть оснащен септиками, куда сбрасываются отходы.
Дополнительный комфорт
Мы можем укомплектовать вашу баню под ключ, вплоть до аксессуаров: шапочек, веников, полотенец и халатов из премиальных материалов. На стене обязательно есть можжевеловое панно, которое не только имеет приятный аромат, но и обладает обеззараживающими, расслабляющими и лечебными свойствами. Льняные подушки тоже нашего производства и наполнены целебными луговыми травами.
В сауне предусмотрена система водоснабжения и канализации. Это значит, что вам не придется возиться с ведрами и не будет застоя воды и луж на полу. Система водоотведения встроена в пол, благодаря чему он всегда остается сухим и безопасным. Проводить влажную уборку в парной тоже очень удобно.
Умные плавучие бани от производителя
При проектировании плавучих бань мы позаботимся о вашем комфорте и учтем все ваши пожелания, например мы можем встроить умное управление баней в целом. Управлять баней можно либо через приложение в телефоне, либо с помощью голосового помощника "АЛИСЫ". Она сможет ответить на вопрос о внешней и внутренней температуре, выключить свет, включить музыку и выполнить любые другие команды, связанные с комплектацией бани викинга.
Чем может быть укомплектована ваша Плавбаня?
Датчик температуры воды. Вы всегда будете знать какая температуры воды за бортом. Одним взглядом вы узнаете комфортно ли сейчас купаться вам или вашим детям.
Датчик температуры воздуха. Позволяет узнать температуру воздуха снаружи и внутри вашего уютного помещения, не выходя из него.
Датчик температуры парной. Позволяет узнать температуру непосредственно в парной, не заходя в нее, готова ли парная для вас и ваших гостей.
Датчики протечки. Датчики протечки устанавливаются внутри помещения в местах, где потенциально могут произойти протечки.
Датчики движения и объема помещения. Установка таких датчиков – дополнительная защита. Если кто-то зашел или находится в помещении, то датчик сообщит об этом.
GPS-треккеры. Необходимы для точного позиционирования вашей плавучей конструкции. Вы всегда сможете отследить все передвижения и пути маршрута, а также скорость вашего дома на воде.
Помимо всего перечисленного в хаусботе установлены датчики протечки, датчики дыма, огня. датчики открытия окон, дверей, датчики объема поплавков и другие
НЕ БОЯТСЯ ЛЬДА
ПОНТОНОВ
За основу мы берём модули плавучести из ПНД (пластика низкого давления), на которые устанавливаем каркас из стали, что придаёт конструкции жёсткость, необходимую для эксплуатации на воде, и качественной импрегнированной древесины, которая устойчива к любым погодным условиям. Далее, в зависимости от пожеланий клиента, мы устанавливаем на пирс баню в заранее обговорённой комплектации, материала и укомплектовываем набором нашей фирменной мебели. Важно понимать, что, заказывая у нас индивидуальный проект вы можете рассчитывать на самое трепетное отношение к вашим желаниям. Мы можем установить зону барбекю, освещение, лодочный мотор и многое другое.
Звоните нам или заказывайте обратный звонок! Мастера нашей компании спроектируют и изготовят для вас надежную, безопасную, красивую плавучую баню на понтонах, которая будет радовать своим качеством и презентабельным видом не одно десятилетие.
Мы живем в России, и многие наши соотечественники с любовью относятся к бане, поэтому ИП, оказывающее подобные услуги, обязательно будет прибыльным. Важно, чтобы все было тщательно продумано: качественная парилка из натурального дерева, возможность охладиться после парной, красивый и функциональный интерьер. Все это реализовано в наших плавучих банях поэтому они так востребованы, как бизнес-проект.
Для коммерческой бани важно предусмотреть все важные опции, чтобы в ней было комфортно отдыхать разным категориям клиентов.
Расположение и реализация проекта
Плавучая баня будет особенно уместна на базе отдыха с береговой линией. Это поможет расширить перечень услуг и повысить средний чек гостя.
Баня также может быть самостоятельным объектом на городском пляже или в развитом поселке. Потенциальными клиентами в данном случае будут отдыхающие на пляже, туристы (если вы проживаете в туристическом регионе), рыбаки и просто люди, любящие пикники. Приятным бонусом для клиентов станет возможность продлить купальный сезон, а вы будете круглогодично получать прибыль со своего объекта.
Наши гарантии
Мы ответственно подходим к реализации каждого проекта поэтому гарантируем качество каждой бани вне зависимости от ее стоимости и конфигурации. Мы любим и заботимся о своих клиентах поэтому оказываем услугу послепродажной поддержки объекта вне зависимости от региона установки.
Кроме гарантий качества нашей продукции, мы также гарантируем прибыльность бани, если она покупается в качестве бизнеса. Мы уже много лет производим бани для разный целей, в том числе и для коммерческого использования и знаем, как организовать процесс, чтобы он был максимально доходным. Мы подготовим для вас бизнес-план с максимальной окупаемостью и лучшими техническими решениями. Вам останется только оформить заказ и внести оплату.
Не без гордости можем сказать, что наши бани стоят в домах и загородных коттеджах многих российских селебрити – нам доверяют самые требовательные клиенты. Хотите стать еще одним нашим довольным клиентом? Обращайтесь, мы будем рады сотрудничеству!
Расширяйте возможности и границы вашего бизнеса вместе с Vuoksa Piers!
Компания «Вуокса Пирс» проектирует, изготавливает и реализует плавучие бани различных конфигураций по всей России. При производстве мы используем материалы и технологии, соответствующие всем необходимым ГОСТам. Каждый из этапов подвергается строгому контролю, а сами изделия — дополнительным проверке и испытаниям. Все плавучие конструкции соответствуют требованиям системы менеджмента качества ГОСТ Р ИСО 9001-2015 и системы экологического менеджмента ГОСТ Р ИСО 14001-2016. При проектировании плавучей конструкции на понтонах мы всегда можем подстроиться под ценовую политику практически любого клиента. Работая давно в этой сфере, у нас появилось огромное количество партнеров по поставке любых видов материалов, в том числе и производственных площадок. По вашему желанию мы можем спроектировать и изготовить баню любого размера и дизайна.

























