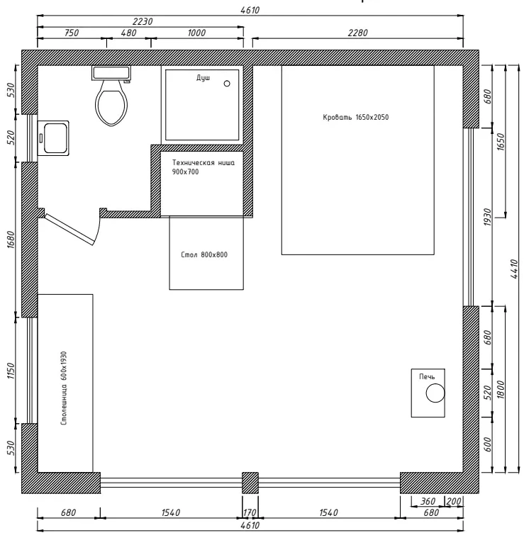
Максимум функциональности — уютная спальня с панорамным окном; кухонная зона, в которой поместится вся необходимая техника; совмещенный санузел
Высокая энергоэффективность — устройство «пирога» стен, система теплых полов и продуманное размещение конвекторов позволяют использовать дом 365 дней в году
Единение с природой благодаря панорамным окнам — общая площадь остекления более 10 кв. м.
Каркас и утепление
- Каркас из доски камерной сушки, сдвоенные узлы каркаса реализованы с прокладыванием джута между досками для препятствия образованию мостиков холода
- Утепление пола и крыши плитами базальтовой ваты 150 мм Rockwооl, стен - 100 мм с возможностью дополнительного контр-утепеления PIR панелями
- Ветро-влагозащитная мембрана Изоспан АМ и УФ-устойчивая Delta Fassade, пароизоляция Изоспан FB с качественной проклейкой швов
- Защита основания бани от грызунов металлической оцинкованной сварной сеткой
Внешняя отделка
- Сторона со входом – реечный фасад, три других – скандинавская доска профиль UYK гладкая окрашенная. Cтены окрашены составами от Tikkurila
- Крыша – надежное металлическое покрытие Кликфальц
- Водосточная система
Окна и входная дверь
- Панорамные окна согласно планировкам на основе стеклопакетов из закаленных стекол толщиной 6 мм
- Входные металлопластиковые двери с замком и прозрачным стеклопакетом
Внутренняя отделка
- Отделка помещений - вагонка штиль сорт АВ (светлые тона) отшлифованная и покрашенная
- Теплые полы, кварцвенил
- Плинтуса, наличники, оконные откосы, подоконники в едином стиле
Оснащение
- Дровяная печь
- Вытяжные вентиляторы в душевой и туалете
Электрика
- Скрытая электропроводка, проводка в парной выполнена из специализированного термостойкого кабеля
- Электрощит с качественными автоматами и блоком УЗО для защиты от утечек электрического тока
- Розетки, выключатели в черном цвете - отлично вписываются в общий стиль
Сантехника
- Качественная душевая система черного цвета, скрытая разводка полипропиленовых труб в душевой
- Унитаз и раковина с тумбой, разводка труб под монтаж бойлера в туалете
- Разводка труб в кухонной зоне (по согласованию с заказчиком)
- Подготовка под установку греющего кабеля на вводе ХВС и слива в септик
Освещение
- Влагостойкий светильник в душевой
- Продуманная система освещения в кухне-гостиной, туалете и предбаннике
- Уличный светильник (спот) у входной двери
- Светодиодная уличная подсветка под кровлей по одной из сторон
Плавучий понтон
- Усиленный стальной каркас понтона, обработанный и покрашенный Tikkurila RAL 9005
- Модули плавучести из ПНД с креплением под каркас (круглогодичное использование в воде)
- Палубный настил из доски хвойных пород обработанной по кругу террасным маслом
- Угловое леерное ограждение
- Лестница стальная "Вуокса пирс" для спуска в воду 5 ступеней
- Кнехты "Вуокса пирс" швартовые двойные усиленные из стали
Умные плавучие дома от производителя
При проектировании хаусбота мы позаботимся о вашем комфорте и учтем все ваши пожелания, например мы можем встроить умное управление домом на воде. Управлять плавучим домом можно либо через приложение в телефоне, либо с помощью голосового помощника "АЛИСЫ". Она сможет ответить на вопрос о внешней и внутренней температуре, выключить свет, включить музыку и выполнить любые другие команды, связанные с комплектацией хаусбота.
Чем может быть укомлектован ваш умный хаусбот?
Датчик температуры воды. Вы всегда будете знать какая температуры воды за бортом. Одним взглядом вы узнаете комфортно ли сейчас купаться вам или вашим детям.
Датчик температуры воздуха. Позволяет узнать температуру воздуха снаружи и внутри вашего уютного помещения, не выходя из него.
Датчики протечки. Датчики протечки устанавливаются внутри помещения в местах где потенциально могут произойти протечки.
Видеонаблюдение. Установка видеонаблюдения позволяют следить за вашим домом в вашем отсутствии, помогает избежать спорных ситуаций при сдаче в аренду.
Датчики движения и объема помещения. Установка таких датчиков – дополнительная защита. Если кто-то зашел или находится в помещении, то датчик сообщит об этом.
GPS-треккеры. Необходимы для точного позиционирования вашей плавучей конструкции. Вы всегда сможете отследить все передвижения и пути маршрута, а также скорость вашего дома.
Помимо всего перечисленного в хаусботе установлены датчики протечки, датчики дыма, огня. Датчики открытия окон, дверей, датчики объема поплавков и другие
НЕ БОЯТСЯ ЛЬДА
ПОНТОНОВ
За основу мы берём модули плавучести из ПНД (пластика низкого давления), на которые устанавливаем каркас из стали, что придаёт конструкции жёсткость, необходимую для эксплуатации на воде, и качественной импрегнированной древесины, которая устойчива к любым погодным условиям. Далее, в зависимости от пожеланий клиента, мы устанавливаем на пирс дом в заранее обговорённой комплектации, материала и укомплектовываем набором нашей фирменной мебели. Важно понимать, что заказывая у нас индивидуальный проект вы можете рассчитывать на самое трепетное отношение к вашим желаниям. Мы можем установить зону барбекю, освещение, лодочный мотор и многое другое.
Звоните нам или заказывайте обратный звонок! Мастера нашей компании спроектируют и изготовят для вас надежный, безопасный, красивый плавучий дом, который будет радовать своим качеством и презентабельным видом не одно десятилетие.




