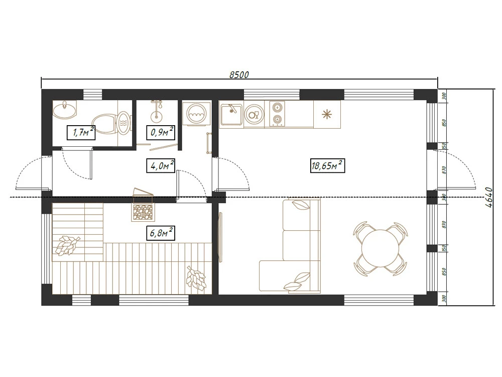
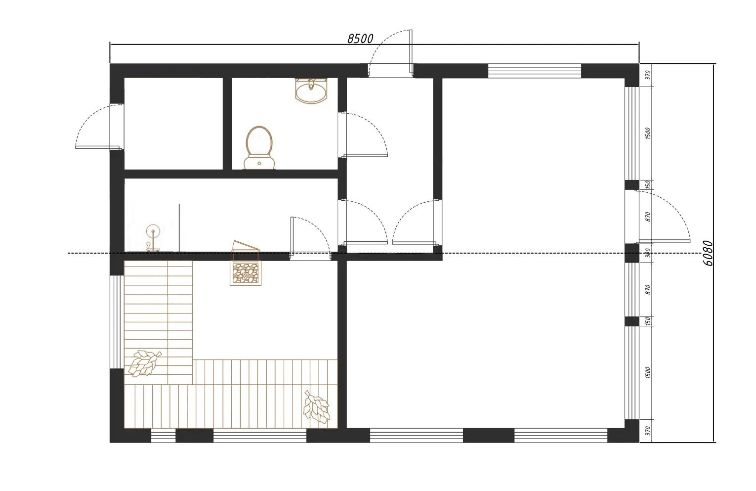
Максимальный простор и функциональность. Парная, полноценная кухня, большая гостиная и санузел. А главное — просторная терраса на крыше для загара, отдыха и наблюдения за звёздами. Это дом для тех, кто не привык мелочиться.
Каркас и утепление
- Каркас из доски камерной сушки, сдвоенные узлы каркаса реализованы с прокладыванием джута между досками для препятствия образованию мостиков холода
- Утепление пола и крыши плитами базальтовой ваты 150 мм Rockwооl, стен - 100 мм с возможностью дополнительного контр-утепеления PIR панелями
- Ветро-влагозащитная мембрана Изоспан АМ и УФ-устойчивая Delta Fassade, пароизоляция Изоспан FB с качественной проклейкой швов
- Защита основания от грызунов металлической оцинкованной сварной сеткой
Внешняя отделка
- Сторона со входом – реечный фасад, три других – скандинавская доска профиль UYK гладкая окрашенная. Cтены окрашены составами от Tikkurila
- Крыша – плоская эксплуатируемая, надежное металлическое покрытие Кликфальц. Леерное ограждение
- Водосточная система
Окна и входная дверь
- Панорамные окна согласно планировкам на основе стеклопакетов из закаленных стекол толщиной 6 мм; форточка для проветривания парной
- Входные металлопластиковые двери с замком и прозрачным стеклопакетом
Внутренняя отделка
- Межкомнатные двери из массива дерева класса люкс
- Отделка помещений - имитация бруса (карельский профиль) отшлифованная и покрашенная
- Плинтуса, наличники, оконные откосы, подоконники в едином стиле
- Облицовка душевой из rерамогранитной плитки Estima, покрытие полов из водостойкого кварц-винила
Оснащение
- Вытяжные вентиляторы в душевой и туалете
- Крючки в гостиной и душевой
- Во всех помещених теплые полы
Система приточно-вытяжной вентиляции
- Приточный канал с регулируемой заслонкой у печи в парной
- Вытяжной канал вентиляции с регулируемой заслонкой под полками в парной
- Активная вытяжка с вентилятором в туалете, душевой и кухонной зоне
Электрика
- Скрытая электропроводка
- Электрощит с качественными автоматами и блоком УЗО для защиты от утечек электрического тока
- Розетки, выключатели в черном цвете - отлично вписываются в общий стиль
Сантехника
- Качественная душевая система черного цвета, скрытая разводка полипропиленовых труб в душевой
- Унитаз и раковина с тумбой, разводка труб под монтаж бойлера в туалете
- Разводка труб в кухонной зоне (по согласованию с заказчиком)
- Подготовка под установку греющего кабеля на вводе ХВС и слива в септик
Освещение
- Светодиодное освещение (термостойкая лента) в парной с "теплым" цветом
- Влагостойкий светильник в душевой
- Продуманная система освещения в кухне-гостиной, туалете и предбаннике
- Уличный светильник (спот) у входной двери
- Светодиодная уличная подсветка под кровлей по одной из сторон
Силовой каркас с модулями плавучести и палубным настилом
- Силовой каркас изготовлен из стальной профильной трубы, обработан и покрашен Tikkurila
- Модули плавучести из двустенной ПНД трубы с креплением под каркас и волнорезом (круглогодичное использование в воде)
- Модули плавучести имеют сертификат с протоколом испытания
- Палубный настил из обработанной лиственницы и яхтенным маслом
При парной в хаусботе
- Отделка парной: вагонка из осины высшего сорта (не боится влаги и не выделяет смолу) отшлифованная и обработанная специализированными составами для саун от Tikkurila
- Двери из закаленного стекла 8 мм из предбанника в парную
- Двухуровневые угловые полки из осины, липы, лиственницы или сосны с удобной спинкой и подставкой под ноги
- Дровяная или электрическая печь
- Приточный канал с регулируемой заслонкой у печи в парной
- Вытяжной канал вентиляции с регулируемой заслонкой под полками в парной
- Проводка в парной выполнена из специализированного термостойкого кабеля
- Светодиодное освещение (термостойкая лента) в парной с "теплым" цветом
Умные плавучие дома от производителя
При проектировании хаусбота мы позаботимся о вашем комфорте и учтем все ваши пожелания, например мы можем встроить умное управление домом на воде. Управлять плавучим домом можно либо через приложение в телефоне, либо с помощью голосового помощника "АЛИСЫ". Она сможет ответить на вопрос о внешней и внутренней температуре, выключить свет, включить музыку и выполнить любые другие команды, связанные с комплектацией бани.
Чем может быть укомлектован ваш умный хаусбот?
Датчик температуры воды. Вы всегда будете знать какая температуры воды за бортом. Одним взглядом вы узнаете комфортно ли сейчас купаться вам или вашим детям.
Датчик температуры воздуха. Позволяет узнать температуру воздуха снаружи и внутри вашего уютного помещения, не выходя из него.
Датчик температуры парной. Позволяет узнать температуру непосредственно в парной, не заходя в нее, готова ли парная для вас и ваших гостей.
Датчики протечки. Датчики протечки устанавливаются внутри помещения в местах где потенциально могут произойти протечки.
Видеонаблюдение. Установка видеонаблюдения позволяют следить за вашим домом в вашем отсутствии, помогает избежать спорных ситуаций при сдаче в аренду.
Датчики движения и объема помещения. Установка таких датчиков – дополнительная защита. Если кто-то зашел или находится в помещении, то датчик сообщит об этом.
GPS-треккеры. Необходимы для точного позиционирования вашей плавучей конструкции. Вы всегда сможете отследить все передвижения и пути маршрута, а также скорость вашего дома.
Помимо всего перечисленного в хаусботе установлены датчики протечки, датчики дыма, огня. датчики открытия окон, дверей, датчики объема поплавков и другие
НЕ БОЯТСЯ ЛЬДА
ПОНТОНОВ
За основу мы берём модули плавучести из ПНД (пластика низкого давления), на которые устанавливаем каркас из стали, что придаёт конструкции жёсткость, необходимую для эксплуатации на воде, и качественной импрегнированной древесины, которая устойчива к любым погодным условиям. Далее, в зависимости от пожеланий клиента, мы устанавливаем на пирс дом в заранее обговорённой комплектации, материала и укомплектовываем набором нашей фирменной мебели. Важно понимать, что заказывая у нас индивидуальный проект вы можете рассчитывать на самое трепетное отношение к вашим желаниям. Мы можем установить зону барбекю, освещение, лодочный мотор и многое другое.
Звоните нам или заказывайте обратный звонок! Мастера нашей компании спроектируют и изготовят для вас надежный, безопасный, красивый плавучий дом, который будет радовать своим качеством и презентабельным видом не одно десятилетие.







